Projecten 


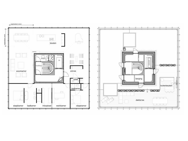
Ontwerp vrijstaande woning Nederweert


Ontwerp indeling en interieur kluswoning Rijswijk


Indeling en interieurontwerp penthouse Bloemendaal


Ontwerp indeling en interieur villa Marokko


Interieur / indelingsadvies Opzuid Amsterdam


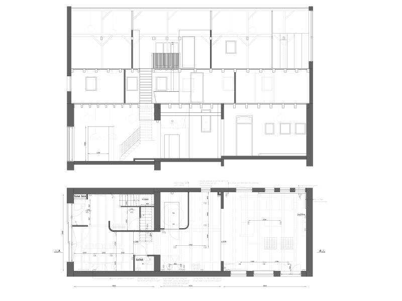
Ontwerp verbouwing monumentaal pand Delft


Opbouw en verbouwing woning Zandvoort


Verbouwing en uitbouw woning Noordwijkerhout


Verbouwing bovenverdieping appartement Amsterdam


Ontwerp nieuw bedrijfspand Prinssen Nederweert


Interieur / indelingsadvies woningen Deo Neo Haarlem


Ontwerp indeling penthouse Uithoorn


Transformatie huurwoningen Slotermeer Amsterdam


Ontwerp variantindelingen appartementen Amsterdam


Renovatie huurwoningen de Punt Amsterdam