Aanbouw en verbouwing Noordwijkerhout


Opdrachtgever: Particulier

Status: Opgeleverd (2009)

Aanbouw, verbouwing, kasten, verlichtingsplan

 

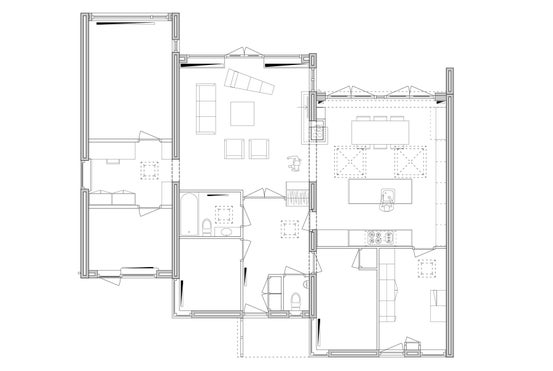
Architectuur Studio Stuyts heeft het ontwerp gemaakt voor de uitbouw aan de achterzijde van de woning, in combinatie met een nieuwe indeling van de woonruimten. De wand tussen de keuken en de woonkamer is doorgebroken, waardoor lange diagonale zichtlijnen de ruimte tot een geheel maken. Deze doorzichten worden ook benadrukt door de 2 nieuwe royale daklichten in de keuken. In het hart van de woonruimte is in de opening tussen woon- en eetkamer een driezijdige gashaard geplaatst. Tussen hal en woonkamer bevindt zich een matglazen dubbele deur, om ook in de hal maximale lichtinval te creëren. Door de nieuwe keuken met kookeiland in de breedte van de woning ontstaat er tevens een ruimere bijkeuken. De 2 paar dubbele deuren in de uitbouw, waar de eettafel voor staat, zorgen voor een echt 'binnen/buiten-gevoel'.


Naast het interieurontwerp en het ontwerp voor de aanbouw, heeft AS2 tevens 3 kasten ontworpen. De lange dressoirkast in de leefkeuken, de tweezijdige hoge kast tussen hal en woonkamer en de boekenkast in de werkkamer. In materialisering vormen deze kasten een eenheid. Tevens is een lichtplan ontworpen, aangepast aan deze nieuwe indeling.